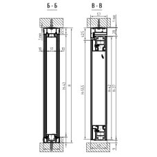
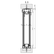
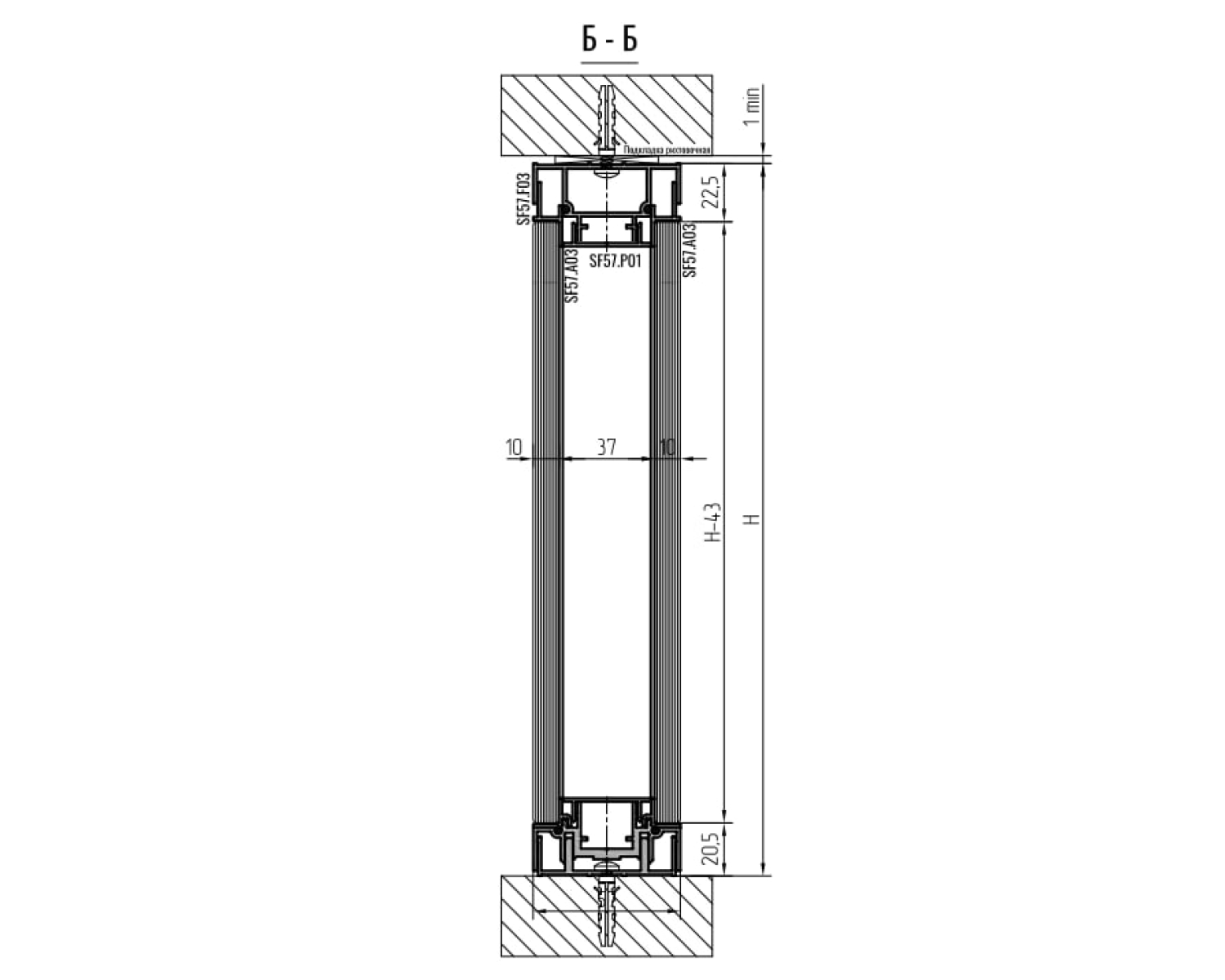
Описание Система офисных перегородок SF57
Система офисных перегородок SF57 с подвійным засклением предназначена обеспечить высокие показатели шумоизоляционной способности конструкции. Окончательная цена рассчитывается от 8 694 грн за кв. метр.
Офисная перегородка с подвійным стеклом, в отличие от других перегородок, обеспечена такими преимуществами как:
- Скорость монтажа с высоким и точным уровнем регулирования несущих профилей.
- Доскональный внешний вид с выразительно подчеркнутой структурной поверхностью стекла без выраженных перепадов скла и профилей.
- Высокий уровень звукоизоляции до 40Дб.
- Большое количество дизайнерских и конструктивных решений, что обеспечивается повышенной светопропускной зданостью и визуально увеличивает пространство.
- Прихожие двери с невидимой фурнитурой предназначены создать впечатление легкости и прозрачности конструкции.
Количество индивидуальных решений достигается за счет широкого ассортимента доступных конструктивных элементов, вариантов фактурной и цветовой конфигурации системы. Ассортимент видов, цветов и фактур надаст разноманитни варианты заполнения глухих перегородок, что позволит создать оригинальный дизайн интерьера и реализовать его в надзвичайный стиль.
Отзывы о Система офисных перегородок SF57
Нет отзывов о данном товаре.
