Опис SV-T Система Telescopic для 3-х рухомих панелей, 80 кг
SV-T Система Telescopic для 3-х рухомих панелей — максимальна мобільність простору
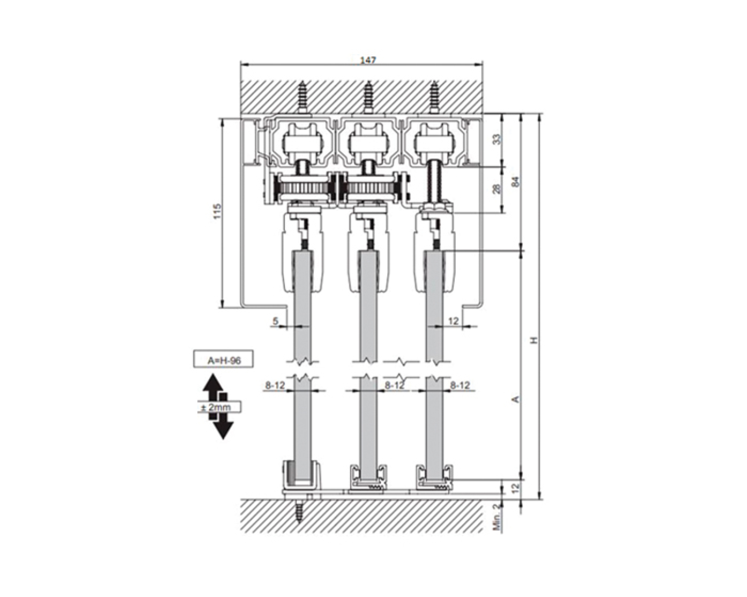
SV-T Система Telescopic для 3-х рухомих панелей — це комплексне рішення для організації розсувних скляних перегородок у сучасних інтер'єрах. Система від іспанського бренду Saheco дозволяє реалізувати телескопічне відкривання трьох стулок, які синхронно переміщуються одна за одною по паралельних напрямних. Завдяки цьому дверний отвір відкривається максимально широко, а самі панелі можуть бути повністю заховані в стіну, нішу або за глуху панель.
Така система незамінна в умовах обмеженого простору — наприклад, у квартирах-студіях, офісах відкритого планування, конференц-залах або готельних номерах. Телескопічний принцип дії забезпечує плавне ковзання без шуму та вібрацій. Максимальне навантаження на одну стулку — 80 кг, рекомендована товщина скла — 8–12 мм, ширина панелі — 600–1500 мм.
Технічна комплектація та функціональні особливості SV-T Системи Telescopic для 3-х рухомих панелей
SV-T Система Telescopic для 3-х рухомих панелей включає всі ключові елементи для проєктування:
- Ролики з затискачем — 6 шт.
- Нижня направляюча — 1 шт.
- Подвійна нижня направляюча — 2 шт.
- Стопори — 6 шт.
- Синхронізуючий ремінь — 1 шт.
- Фіксатор ременя — 1 шт.
- Ключ для регулювання — 1 шт.
У комплект не входять рельс, декоративна кришка та фурнітура для глухих стулок — ці компоненти обираються індивідуально в залежності від конкретного архітектурного проєкту. Або ви можете обрати готове рішення — комплект фурнітури для розсувних систем Телескопік 3+1. Система ідеально інтегрується з брендовими комплектуючими SF, зберігаючи єдність стилю та технічну точність.
Усі елементи виготовлені з високоякісних матеріалів, стійких до зношування, вологи та перепадів температур. Вузли кріплення забезпечують стабільну роботу навіть при інтенсивному використанні, що робить цю систему ідеальною для комерційних об’єктів з великим трафіком.
Монтаж, підтримка і замовлення
Монтаж SV-T Системи Telescopic для 3-х рухомих панелей не потребує складних підготовчих робіт: напрямні кріпляться до стіни або стелі, а нижня фіксація забезпечує стабільність ковзання. Завдяки телескопічному механізму, всі три панелі відкриваються в один рух, що виглядає стильно і додає динаміки простору.
Ви можете придбати систему в інтернет-магазині SF.UA або оформити замовлення за телефоном +38 097 500 25 25. Менеджери допоможуть з підбором сумісних елементів, а також проконсультують щодо особливостей монтажу та експлуатації.
Продукція завжди в наявності на складі, а доставка здійснюється по всій Україні в найкоротші терміни. Вибираючи систему SV-T Telescopic, ви отримуєте перевірену якість, надійність та гнучкість у реалізації сучасних інтер’єрних рішень.
Основні характеристики SV-T Система Telescopic для 3-х рухомих панелей, 80 кг
Відгуки про SV-T Система Telescopic для 3-х рухомих панелей, 80 кг
Відгуків про цей товар ще не було.
