Опис Розсувна система Telescopic 2+2
Особливості конструкції Telescopic 2+2
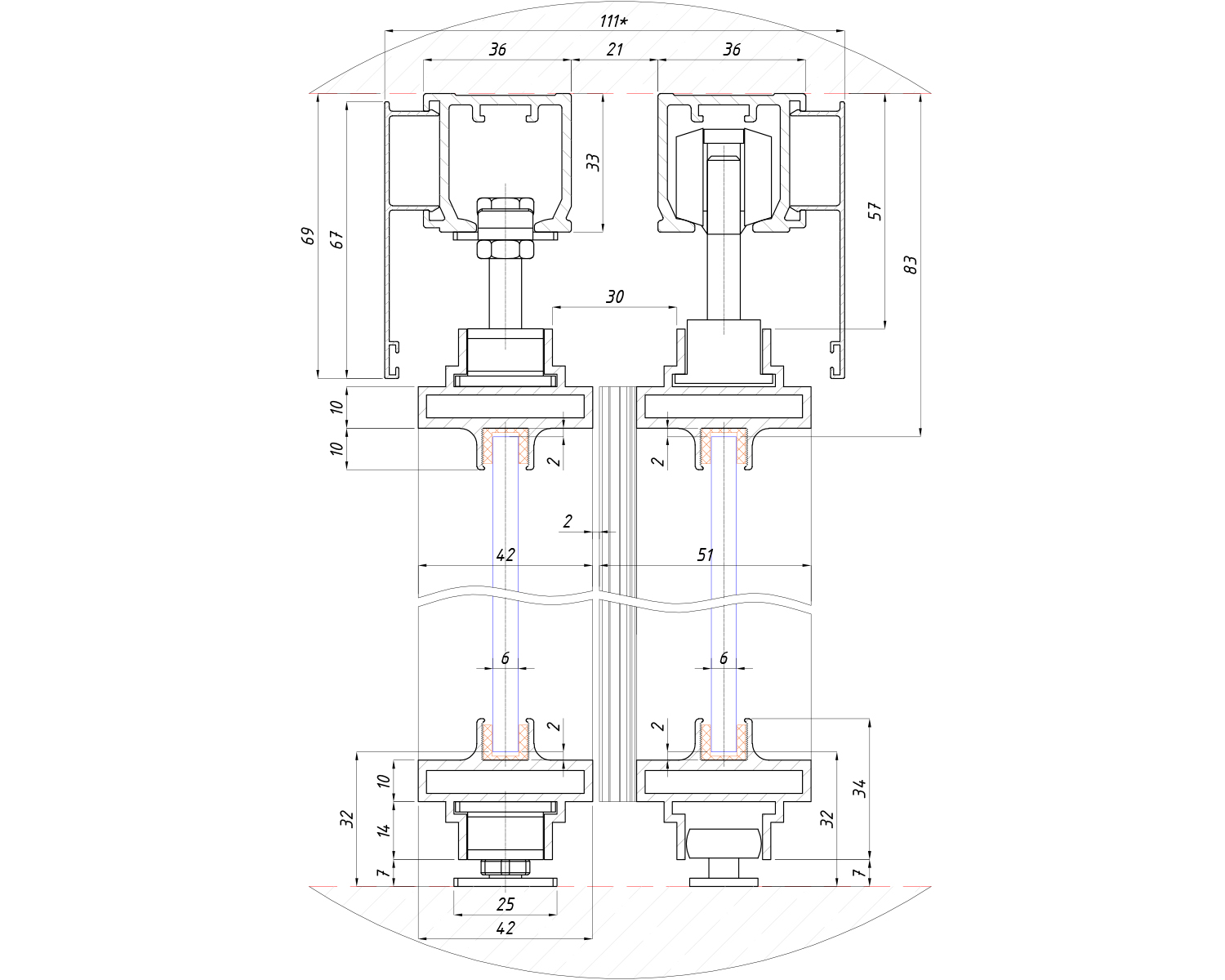
Розсувна система Telescopic 2+2 призначена для скляних перегородок із чотирма стулками: двома рухомими та двома стаціонарними. Завдяки синхронному принципу роботи двері відкриваються одночасно, що дозволяє отримати широкий і зручний прохід. Телескопічний механізм забезпечує плавний рух, коли одне полотно призводить до відкривання інших.
Конструкція підтримує використання скла товщиною 6 мм, а максимальне навантаження на одне полотно становить до 80 кг. Це робить систему надійною та стійкою до щоденного інтенсивного застосування.
Механізм та фурнітура Telescopic
У системі використовується роликовий механізм, інтегрований у верхню напрямну. Такий підхід забезпечує стильний і лаконічний зовнішній вигляд дверей, залишаючи всі технічні елементи прихованими. Верхня напрямна виготовлена з міцного алюмінієвого профілю, що гарантує стабільність та довгий термін служби.
Додатково система оснащена вбудованими дотягувачами, які забезпечують м’яке закривання полотен без поштовхів та шуму. Це підвищує рівень комфорту і зберігає функціональність фурнітури та скла.
Переваги встановлення та дизайну Telescopic
Монтаж системи здійснюється за технологією верхнього підвісного кріплення, що дозволяє залишити підлогу вільною від напрямних елементів. Завдяки цьому простір виглядає відкритим і охайним. Ширина отвору при відкриванні збільшується на 30–50% у порівнянні з класичними системами, що робить Telescopic 2+2 ідеальним рішенням для просторих інтер’єрів.
Стандартне виконання – чорний колір, проте можливе фарбування у будь-який відтінок палітри RAL, що дозволяє легко інтегрувати систему у будь-який дизайнерський проєкт – від сучасної класики до преміум-стилістики.
Відгуки про Розсувна система Telescopic 2+2
Відгуків про цей товар ще не було.
